Fikirlerinizi ve Projelerinizi Birlikte Şekillendirelim
Hızlı Fiyat Alın !

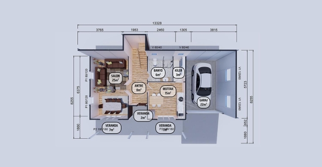
ÜRÜN AÇIKLAMASI
Ürün Adı | Hünkar |
m² | 177m² |
KAT SAYISI | 2 |
ODA SAYISI | 3+1 |
SALON | 25m² |
YATAK ODA | 10-15-15m² (3 adet) |
MUTFAK | 15m² |
BANYO | 3-6-6m² (3 adet) |
GARAJ | 22m² |
KİLER | 3m² |
ANTRE | 8-8m² (2 adet) |
VERANDA | 2-7-7m² (3 adet) |
BALKON | 2-7-7m² (3 adet) |
Prefabrik evler yangına dayanıklı A1 sınıfı yanmaz malzemelerden üretilmektedir ve ekonomiktirler.
Isı dengesi PVC pencereler ile desteklenmektedir. Her bölgeye uygun hesaplamalar ile evlerimiz müşterilerimize teslim edilmektedir.
Projeler revize edilerek müşterilerimizin istekleri hayata geçirilmektedir.
Bina Yüksekliği | 250 cm |
İç Duvar | 6 cm – 10 cm (Opsiyonel) |
İç Kapı | Amerikan Kapı |
Pencereler | Beyaz Renk PVC Pencere |
Elektrik Tesisat | Sıva Altı |
İç Cephe Boyası | Plastik İç Cephe Boyası |
Dış Duvarlar | 10 cm |
Dış Kapı | Çelik Kapı |
Balkon Kapısı | Beyaz Renk PVC Kapı |
Çatı Kaplaması | Boyalı Galveniz Sac, (Opsiyonel) Metal Kiremit, Shingle Kaplama |
Sıhhi Tesisat | Sıva Altı |
Dış Cephe Boyası | Silikonlu Dış Cephe Boyası |
1. Tüm bina elemanları (Duvar panelleri ve birleşim elemanları) montajı
2. Dış kapının (Çelik Kapı), iç kapıların (Amerikan Kapı) takılması
3. Tüm pencerelerin ısıcam dahil takılması
4. Bina içi elektrik tesisatı malzeme ve uygulamaları (prizler, anahtarlar, sigortalar, aydınlatma arma türleri)
5. Sıhhi tesisatı malzeme ve uygulamaları(pissu-temiz su borulama işlemi)
6. Projede varsa vitrifi ye malzemesinin temin edilmesi (klozet, lavabo, duş teknesi, muslukları) montajı hariç
7. Tüm tavan kaplaması, tavan yalıtımı, çatı kaplaması
8. İç & Dış Tavan, Metal Aksam Boya ve Astarlama ve Silikonlama İşlemi
9. Malzemelerin alıcı tarafında gönderilen araçlara yüklenmesi, satıcıya aittir.
1. Zemin betonu ve her türlü hafriyat işleri
2. Zemin ve duvar kaplama işleri (şap, seramik, fayans, halı vs.)
3. Binanın kurulması için gerekli izinler
4. Nakliye, nakliye sigortası ve gerekli ise vinç, iskele temini.
5. Bina harici dış bağlantılar. (Elektrik, topraklama hattı, pissu ve temiz su vs.)
6. Isıtma ve soğutma tesisatları (kalorifer, klima vs.)
7. Mutfak alt üst dolapları ve banyo dolapları
8. Telefon ,TV, Bilgisayar, UPS, Data tesisat ve armatürleri.
9. Montaj esnasında kullanılacak elektrik temini.
10. Şehir Dışı montajlarda ekibin konaklama ve yemek bedeli.
11. Malzemenin montaj yerinde hırsızlara karşı korunması.