New Generation Technological Structures Compatible with Nature and Environment

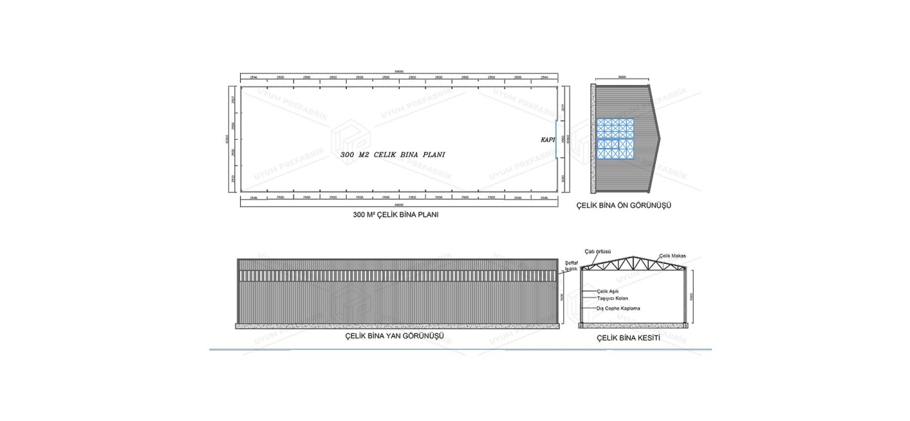
300m² Steel Hangar Building

Known for its durability and wide range of uses, steel hangar buildings offer ideal solutions for industrial, agricultural, storage, garage, workshop, and production spaces. Thanks to their modular structure, our hangars can be produced in various sizes to meet your needs and offer long-lasting, maintenance-free use.

Let's Shape Your Ideas and Projects Together

You can send us your opinions and suggestions on any issue you have in mind. All your communication messages are read carefully and answered by us as soon as possible. In order for us to work more efficiently; If you have projects you are considering doing, please send them to us using the form below or at the address below, along with their details.

Get a Quick Price!

Number 1 in Prefabricated Houses and Buildings in Turkey : Uyum Prefabrik